アーバネックス三宮磯辺通
物件番号/1120777049
- 賃 料
- 160,000円
- 共益費
- 12,000円
- 間取り
- 2LDK
- 専有面積
- 56.7㎡
- 築年月
- 平成17年6月 (築21年)
- 敷 金
- -
- 礼 金
- 320,000円
- 保証金
- -
- 解約引
- -
- 交 通
- JR東海道本線 三ノ宮駅 徒歩9分
ポートライナー 貿易センター駅 徒歩3分
神戸市営地下鉄海岸線 三宮・花時計前駅 徒歩6分 - 所在地
- 神戸市中央区磯辺通1丁目
おすすめポイント
ハイセンスな賃貸マンション ペットの飼育も相談できます♪
設備・周辺情報など
- 路線/駅
- JR東海道本線 三ノ宮駅 徒歩9分
ポートライナー 貿易センター駅 徒歩3分
神戸市営地下鉄海岸線 三宮・花時計前駅 徒歩6分 - 所在地
- 神戸市中央区磯辺通1丁目
- 内 訳
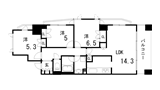
- LDK12.5帖、洋室6.5帖、洋室4.2帖
- 種 別
- マンション
- 階数/階建
- 8階/15階建
- 向 き
- 南東
- 構 造
- SRC
- 現 況
- 空室
- 入 居
- 2026年5月上旬
- 契約期間
- -
- 取引態様
- 一般媒介
- 駐車場
- 空有 25,500円/月
- 設備/条件
- 上水道
- 下水道
- 都市ガス
- 電話
- 冷房
- 暖房
- 給湯
- フローリング
- エレベーター
- オートロック
- 追焚機能
- 洗髪洗面化粧台
- システムキッチン
- バルコニー
- 宅配ボックス
- ガスキッチン
- シャワー
- エアコン
- 室内洗濯置場
- バス・トイレ別室
- 温水洗浄便座
- TVモニターホン
- 屋内駐車場
- 浴室乾燥
- 収納スペース
- インターネット対応
- 洗面所独立
- カウンターキッチン
- W・INクローゼット
- 床暖房
- 駐輪場
- バリアフリー
- コンロ2口以上
- バイク置場
- 光ファイバー
- 日当たり良好
- インターネット無料
- ペット相談
- 2人入居可
- 保 険
- 加入要
- 保証会社
- -
- 金銭備考
- 鍵交換代: 38,500円
- 退去時クリーニング代55,000円
- 周辺施設
- 中央小学校/1613m (徒歩21分)
- 布引中学校/2529m (徒歩32分)
- 大学など
- -
- 更新日
- 2026/02/24 (次回更新予定 2026/03/10)
表示の情報と現況に差異がある場合は現況優先となります。
































3

